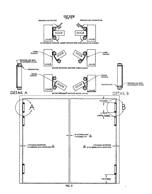
Spring Hinge

This particular hinge has a built-in spring that is adjustable for tension but does not have the ability for slowing down the speed of the closing door. 

SpringHingeDiagram
You can contact us on WhatsApp 24/7